1
/
z
12
Finvilla
WHITE HOUSE
WHITE HOUSE
Normálna cena
Od €840,00/m²
Normálna cena
Cena po zľave
€840,00
Jednotková cena
/
za
Pre viac informácií nás kontaktujte prostredníctvom formuláru nižšie.
Detaily
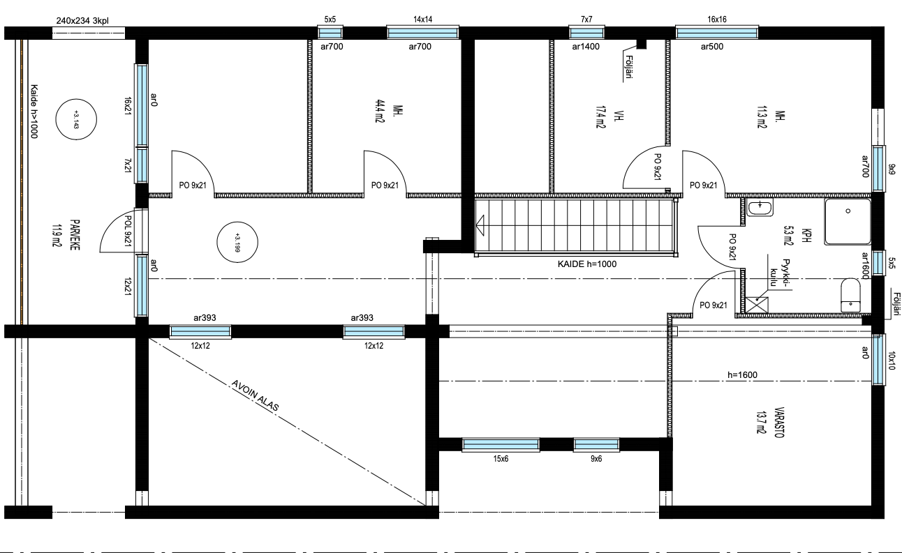
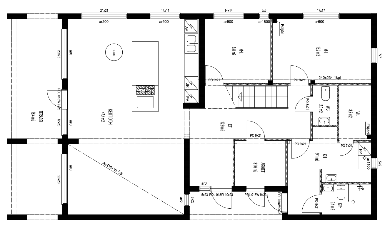
Zastavaná plocha |
217 m² |
Obytná plocha |
200 |
Počet izieb |
6 |
Počet poschodí |
2 |
Terasa |
Áno |
Popis
Kompletné stenové/stropné/strešné prvky s hotovým vonkajším povrchom, hotový dom pre elektrikárov a inštalatérov
Vrátane:
- Celý rám domu s vonkajším obkladom stien a tepelnou izoláciou;
- Výroba vnútorných rámových stien a vnútorných nosných rámových stien bez tepelnej izolácie a úpravy stien interiéru;
- PVC okná, vchodové dvere sú inštalované v zárubni do steny;
- Farba vonkajšej úpravy musí byť dohodnutá pred objednávkou a stanovená v zmluve;
- Výroba strešných a stropných panelov bez zastrešenia a podláh;
Cena nezahŕňa dodávku. Pre každý projekt individuálne.
Pre viac informácií nás kontaktujte prostredníctvom formuláru nižšie.
Share











